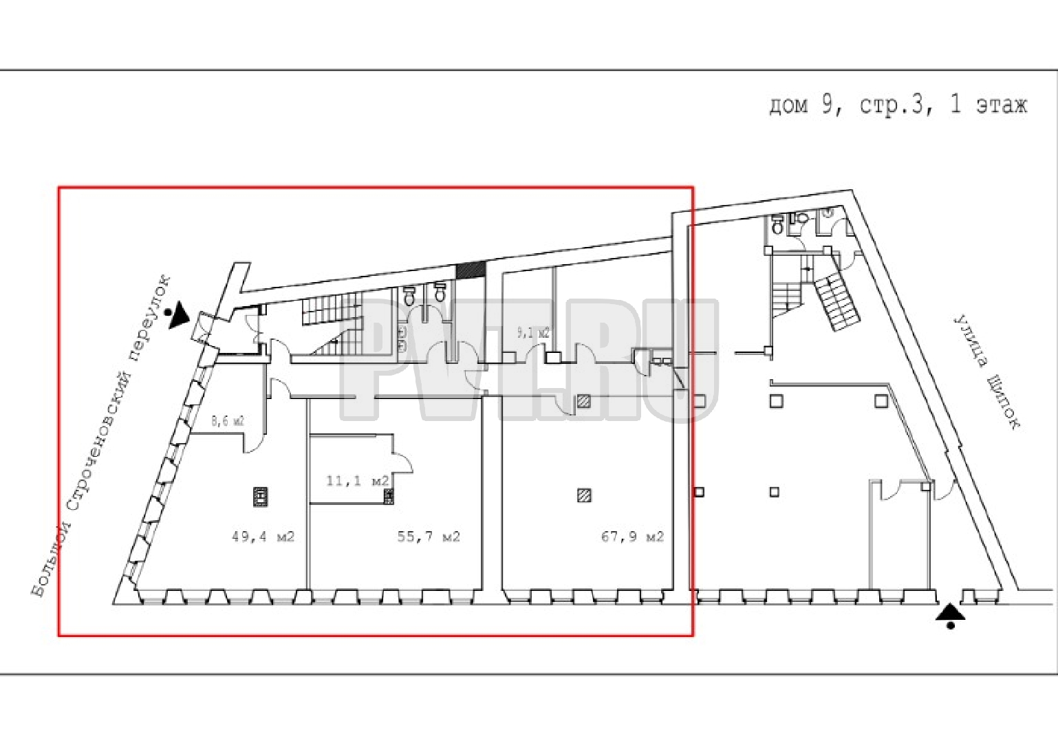
Офис, 285,7 м², смешанная планировка, готово к въезду

951 142,92 ₽/мес.

39 950 ₽/м²/год

Связаться с нами

Коммерческие условия

Налогообложение

УСН

B+

Класс

5

Налоговая

2007

Год постройки

3 418 м²

Общая площадь

3

Количество этажей

Вы можете записаться на просмотр интересующей вас площади